3150 Lloydtown Road, King
$2,700,000
MLS® Number: N12839206
Large Church Campus on 2.94 Acres in King Township – Sanctuary, Gym & Nursery Facilities
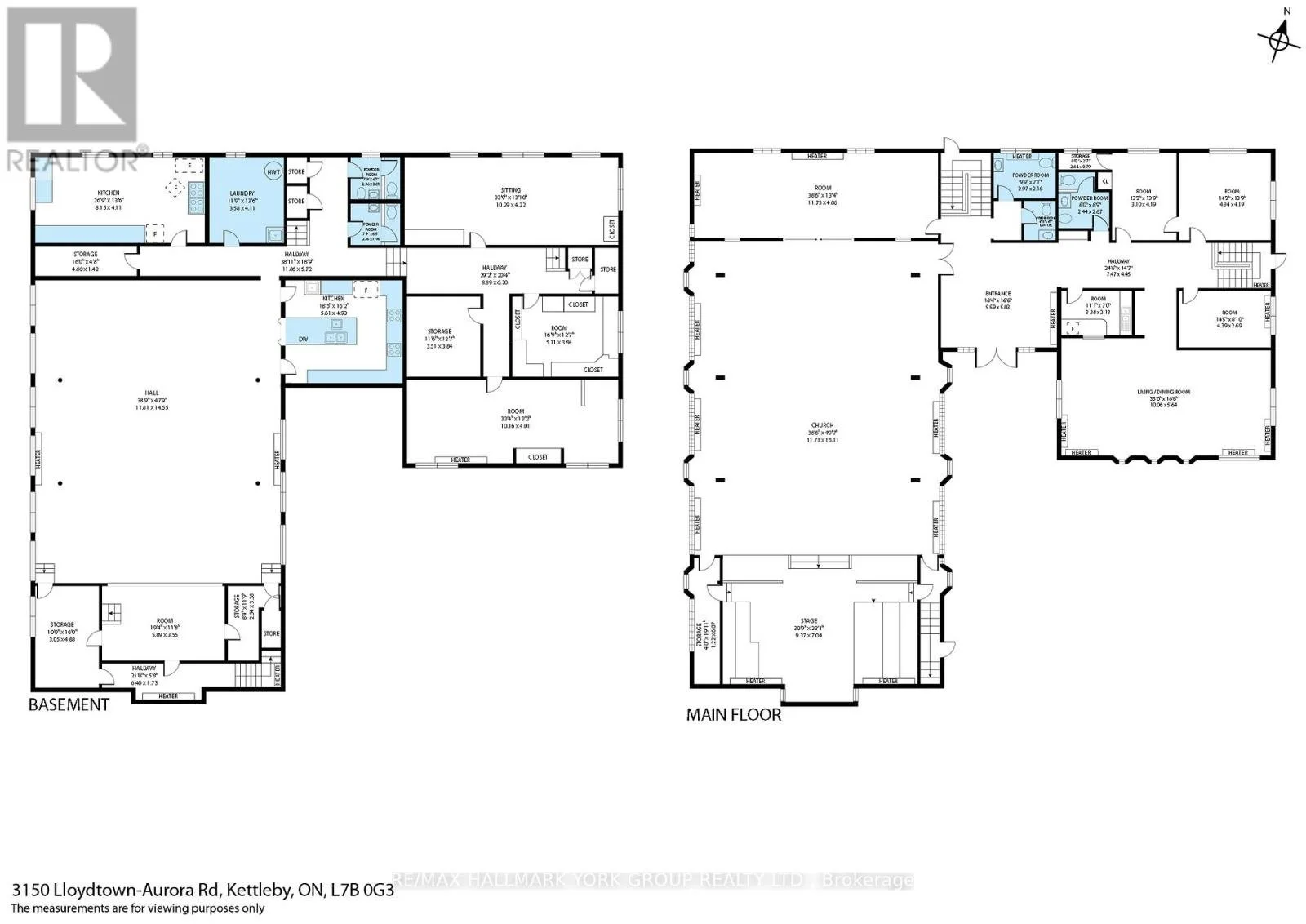
Situated on nearly three acres of desirable land in King Township, this expansive church property offers a rare opportunity for a congregation seeking a spacious ministry campus in a peaceful rural setting with excellent access to Highway 400. The property includes approximately 11,554 sq ft of building space and ample parking for 35–40 vehicles, providing room for worship, education, fellowship, and community programs.
The main level includes a primary sanctuary seating approximately 150 people, a smaller chapel accommodating about 50, and a full gymnasium capable of hosting gatherings of up to 160. Additional spaces include administrative offices, a pastor’s office, meeting rooms, a fellowship hall, and two kitchens. The lower level provides nursery school space along with additional gym and storage areas, making the building well suited for children’s ministry, daycare programming, and midweek church activities.
Key Features:
Approx. 11,554 sq ft church facility (MPAC)
2.94-acre property in rural King Township
Main sanctuary seating approx. 150 people
Chapel seating approx. 50
Gymnasium capacity approx. 160
Fellowship hall and multiple meeting rooms
Two kitchens
Nursery/daycare space on lower level
Pastor’s office and administrative offices
Parking for approximately 35–40 vehicles
Septic system servicing the property
Zoned I / ORMC (buyer to verify permitted uses)
This well-established church campus offers extensive space for worship, discipleship, youth programs, and community outreach in a quiet yet accessible location just minutes from Highway 400. Property is offered on an as-is, where-is basis.
